






Entwurf:
Aufgabe im Fach Baukonstruktion und Entwerfen sowie Tragwerkslehre und Technischer Ausbau war der Entwurf und die detaillierte Planung einer TÜV- Service- Station. Erster Bestandteil der Aufgabe war, den Aufgabenbereich des TÜV zu erforschen und daraus ein geeignetes Raumkonzept zu bilden. Nach Besichtigung einer TÜV- Werkstatt und Gesprächen mit Angestellten ergaben sich verschiedene Punkte, die zur Entwurfsgrundlage wurden :
1. Trennung Angestellte und Kunden
2. Trennung Büro und Werkstatt
3. Sichtbezüge Büro und Werkstatt sowie direkte Wege
4. Sichtbezüge Kunden und Werkstatt
Durch diese hohe Anforderung an die Sichtbezüge entstand die Idee ein Tragwerk zu planen, das eine Transparenz zulässt.
Tragwerk:
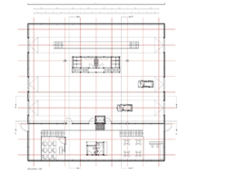
Ein Gitterrost mit einem Raster von 3,50m x 3,50m bildet das Haupttragwerk. Dieser steht auf vier eingespannten Stützen, die Aussteifung übernehmen Kerto- Platten. Dieses System ist unabhängig von der Fassade und sonstigen Einbauten. Die Fassade hat einen Abstand von 1,00m vom Trägerrost um die Abkopplung des Tragwerkes ersichtlich zu machen.
Über dieses Raster von 3,50m entstand die Aufteilung der verschiedenen Bereiche. Die zwei Kerne stehen frei unter dem Rost.
Kern 1: Büro mit Galerie und Cafeteria
Kern 2: Technikraum und Duschen
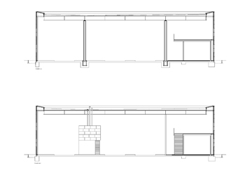
Belichtung:
Die Belichtung der Büros erfolgt über zwei Lichtbänder an der Südfassade. Die Belichtung der Werkstatt erfolgt über Oberlichter und verglaste Torelemente.





